
自“滨城”概念横空出世后,天津在卯足了劲儿发展滨海。购房政策、落户政策、城市建设、城市更新等政策,都在对滨海倾斜。最新的产城融合政策也开始在滨海落地。近日,天津市滨海新区经开区规划和自然资源局挂出津滨......
自“滨城”概念横空出世后,天津在卯足了劲儿发展滨海。
购房政策、落户政策、城市建设、城市更新等政策,都在对滨海倾斜。
最新的产城融合政策也开始在滨海落地。
近日,天津市滨海新区经开区规划和自然资源局挂出津滨开(挂)2020-7号地块中子地块A的建设工程方案总平面批前公示图。
该项目的公示,也标志着滨海又一个产程融合新区诞生了。
01
照例,先回顾下地块出让情况。
2021年3月10日,合景泰富以总价7.389亿元摘得位于天津经济技术开发区西区的津滨开(挂)2020-7号,成交楼面价2559元/㎡。

地块出让土地总面积198661.1平米,总建筑体量288691平方米。
地块包含A、B、C、D、E五宗子地块,其中A-D地块为商住用地,E地块为纯商服用地。
此次公示的为最北端的A地块。
地块指标见下表:

02
从公示的规划图显示,地块项目位于天津滨海新区经开区西区,四至为东至冬旭路,南至规划古泰街,西至规划创达路,北至规划绿廊东街。

项目地块规整,整体布局方正,共规划10栋住宅,全部为8-9层到顶的洋房。

项目总用地面积39372.8㎡,总建筑面积83609.2㎡,住宅部分建筑面积55609.2㎡。
总户数645户,按照住宅部分建筑面积粗略计算,户均面积86㎡,对标刚需型购房者。
机动车停车位共682辆,全部为地下停车位,社区为人车分流社区。

从配套上来看,项目绿化率40%,规划绿地面积≥15749.12㎡;社区中央设计有组团绿地约1820㎡,还设置有居民健身场地约240㎡。
此外,地块还配套建设有物业管理服务用房、居委会、警务室、商业服务网点等。
03
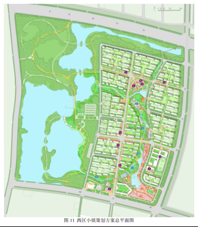
今年4月,天津经开区发布了西区小镇规划。

根据规划显示,西区小镇位于经开区西区,地理位置优越:
15分钟车程到达机场、高铁站、外环,30分钟车程到达双城核心,交通便利。
规划方案通过对片区总体布局、生态景观、服务配套、交通出行、建筑空间等的统筹考虑。
未来西区将建成“以生态景观、产城融合为驱动,综合居住、商业、教育、文化于一体的小镇“
同时,在产业方面,定位为滨海新区高端制造业基地,经开区能级跃迁发展支点区域。
主导产业包括汽车制造、电子通信、装备制造、生物医药、航天等。
经开区西区以“组团式“发展结构承接大项目落地,整个片区缺少集中、大规模的配套设施。
所以西区小镇将为西区的城市配套功能提供重要补充,对实现产城融合具有重要意义。
而景瑞项目正好在西区小镇中,将建设西区小镇一期住宅及商业配套。
效果图
值得一提的是,未来该地块住宅将配置相应居住街坊级公共服务设施。
住宅5分钟生活圈内将规划2处社区中心、2处独立占地幼儿园、2处集中绿地及2处小型多功能运动场地;
10分钟生活圈内将规划1处商业及生鲜超市、1处规划九年一贯制学校、1处集中绿地和中型多功能运动场。