
▲琶洲港澳客运口岸©战长恒琶洲港澳客运口岸项目于近日正式落成,作为《建设广州国际航运中心三年行动计划》(2018-2020年)的重点项目之一,其具有双重战略目的,即促进粤港澳大湾区的互联互通,同时深度......

▲琶洲港澳客运口岸©战长恒
琶洲港澳客运口岸项目于近日正式落成,作为《建设广州国际航运中心三年行动计划》(2018-2020年)的重点项目之一,其具有双重战略目的,即促进粤港澳大湾区的互联互通,同时深度参与“一带一路”战略,为琶洲地区搭建数字航运丝绸之路提供平台,以空间赋能大湾区经济、文化、科技深度融合发展。

▲琶洲港澳客运口岸东北角鸟瞰©战长恒

位于广州市海珠区阅江中路和会展东路交界处的琶洲港澳客运口岸,滨临珠江,毗邻广交会展馆,与琶洲大桥相距600米。码头岸线长达280米,设置5个500吨级泊位。口岸船舶泊位在琶洲会展塔码头下游100米与琶洲大桥上游470米之间,联检楼等配套设施设置在阅江中路北侧地块。

▲项目区位©XAA建筑事务所
作为广州首座集跨境、城际、海岛功能的水上交通口岸综合体,客运口岸以海天联运的创新方式,开通琶洲—香港国际机场往返航线,意味着游客仅花2小时,即可体验“广州持票,香港登机”的快捷出行。项目不仅填补了广州中心城区水上跨境口岸的空白,更以面向世界的窗口,实现粤港澳大湾区立体交通的无缝衔接,大幅提升区域凝聚力和辐射力。

▲琶洲港澳客运口岸与琶洲会展中心©任天

▲琶洲港澳客运口岸西南方向航拍©战长恒

由于基地选址在沿江绿化带之上,在做出必要的防洪退让后,建筑主体架于现存有轨电车轨道之上。在复杂的现场条件下,建筑师们需要面对及解决建筑主体对沿江景观带的延续性影响、对行人与江面之间的视线遮挡,以及与有轨电车的共存关系。

▲琶洲港澳客运口岸总平图©XAA建筑事务所
为攻克一系列难题,建筑师综合考量城市特色,交通定位和自然环境后,通过“通透、轻盈、和谐”三个层面开展方案,提出简约高效的现代主义设计理念,尽可能消解建筑主体对周边环境的影响。

▲建筑体块生成©XAA建筑事务所

▲琶洲港澳客运口岸西北角航拍©战长恒

▲建筑立面形态如行云流水般©战长恒
一叶轻舟过,两岸珠水长。客运口岸以独特的波浪造型俯瞰着珠江,呈现行云流水般自然舒展的形态。为了让多层体量的临江建筑仍给人轻盈舒适的视觉印象,设计通过提取波浪的形态特征,采用质轻耐蚀,光洁具有质感的银灰铝板,塑造流动舒展,不受约束的外立面曲线。

▲设计手稿©冼剑雄
同时适当地将两端屋顶压低,形成呈现出中部高、两边低的平缓弧面,巧妙地弱化了建筑在高度上的视觉压迫。从空中远眺,建筑体量像一叶轻舟,随波涛起伏于江面之上,近观又极具现代感。

▲屋顶是中部高、两边低的平缓弧线©战长恒

▲琶洲港澳客运口岸立面弧线细节©战长恒

灵动的流动曲线不仅限于造型,还体现在功能布局,主体中央为主要联检区域,办公及交通空间则结合建筑的曲线坡道造型结构分布在南北两侧。两端通高大厅的布置方式,使原本层高较为局促的公共空间得到改善。
沿街与沿江的立面两侧上分布的曲线作为受力结构的同时,也结合设置了人行扶梯、疏散坡道等竖向交通疏散系统,使立面元素与使用功能之间得到了充分结合。市民在坡道和平台享受到景观的同时,也不会对室内视野造成影响。

▲交通疏散示意图©XAA建筑事务所
为了保证有轨电车从主体建筑之中自由穿行,建筑主体首层架空,二楼抬高至7.5m。大方巧妙的设计对各个功能区域进行调度,将主要客运出入境设施及配套功能收置于二三层,并通过连廊将临时联检楼与码头水上固定平台相连。把新建筑、码头作业区域、供市民散步的外部空间和通向城市的有轨电车无缝衔接,跨境与城际一体,提高区域运行效率,丰富市民立体交通生活的形态及层次。

▲有轨电车从建筑下方穿过©战长恒

▲琶洲港澳客运口岸©战长恒
建筑主体采用大量的玻璃幕墙保障视线通透,充沛的自然光向候船大厅倾洒,使得室内外视野空间开阔明朗。凭借距离珠江38米优越的地理位置,旅客在候船期间抬头即可见到无与伦比的滨江景色和延绵的城市天际线。

▲外立面幕墙©战长恒

▲琶洲港澳客运口岸与珠江新城建筑群©战长恒


▲外立面玻璃幕墙大样节点©战长恒
客运口岸立面延续着沿街和沿江界面秩序,错动的波浪造型,带来丰富的光影化解建筑体量,与琶洲区域整体建筑色调协调,同时树立标志性吸引游人和市民驻足,并嵌入城市肌理。

▲琶洲港澳客运口岸©战长恒
沿江一侧利用曲线坡道引入了公共观景平台,与整体建筑形态相匹配并向下延伸,把部分半室外空间形成沿江绿带的延续空间,将视线引向至更为开阔的滨江长廊,使得整体与周边环境相互呼应、和谐共存,成为市民及游客体验捷运,休闲娱乐,享受自然的绝佳场所。



▲项目模型照片©XAA建筑事务所

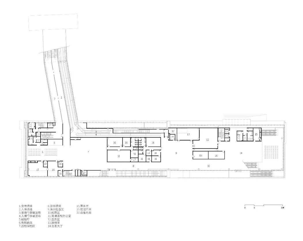
▲首层平面图©XAA建筑事务所

▲二层平面图©XAA建筑事务所

▲a-a剖面图©XAA建筑事务所
▲1-1剖面图©XAA建筑事务所
项目名称:琶洲港澳客运口岸
工程地点:广州市海珠区琶洲阅江中路北侧临江段
设计时间:2019年
完成时间:2021年
用地面积:11408㎡
建筑面积:10055㎡
建筑方案设计:XAA建筑事务所